Beschrijving

Charmant 2-kamerappartement op eigen grond van 67 m² met twee balkons, originele details, royale lichtinval en een stijlvolle afwerking. De woning met energielabel C wordt bovendien volledig gemeubileerd opgeleverd dus je kan er zo je intrek nemen!

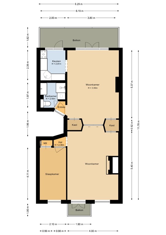
Indeling:
Via het gemeenschappelijke trappenhuis bereik je de entree van de woning op de tweede etage. Hal met garderobe. De woonkamer en-suite is bijzonder stijlvol. Originele details, zoals de plafonds met ornamenten en de grote (werkende) schouw, combineren prachtig met de houten vloeren (met dubbele isolatie) en vloerverwarming en openslaande deuren naar het balkon. De grote raampartijen en de plafondhoogte van 3 meter zorgen voor een heerlijk ruimtelijk en licht gevoel. Via de en-suite die ook als tweede slaapkamer te gebruiken is, heb je toegang tot het ruime balkon aan de rustige achterzijde met de avondzon. Je geniet hier van een heerlijk vrij uitzicht omdat er aan de achterzijde niet hoog gebouwd mag worden. Slaapkamer aan de voorzijde met uitklap bed. Keuken met plafondhoge kasten en 6 pits gasfornuis. Moderne badkamer met inloopdouche. 

Omgeving:
Gelegen in de populaire Linnaeusparkbuurt, het meest geliefde deel van de oude Watergraafsmeer, woon je hier te midden van brede, groene lanen en schitterende architectuur uit het begin van de 20e eeuw. Op slechts enkele minuten lopen bevinden zich de winkels aan de Linnaeusstraat, het winkelcentrum Oostpoort en het sfeervolle Park Frankendael. De wijk heeft een charmant dorps karakter met een ruim aanbod aan speciaalzaken, gezellige koffietentjes, goede restaurants en volop speelplekken, scholen en sportvoorzieningen. Het plein bij Café 1900, met zijn fontein, gezellige bankjes en kastanjebomen, vormt een geliefde ontmoetingsplek voor buurtbewoners.

Duurzaamheid: Klaar voor de toekomst – buurtwarmtenet in opbouw: de woning ligt in een wijk waar gewerkt wordt aan het buurtwarmtenet Watergraafsmeer: een duurzaam en lokaal warmtenet op initiatief van bewoners zelf. De warmte komt van het datacenter in het Science Park en maakt aardgas overbodig. Het aansluiten is eenvoudig en verwacht wordt dat de eerste woningen vanaf 2028 gebruik kunnen maken van deze stadswarmte.  Een toekomstbestendige keuze met stabiele, lagere energiekosten!

De bereikbaarheid is uitstekend: via de S113 rijd je binnen tien minuten naar de Ring A10, tramlijn 19 ligt om de hoek, en ook het Amstelstation en Muiderpoortstation zijn binnen handbereik.

Bijzonderheden:
- Woonoppervlakte conform NEN 2580: 67 m²
- Gelegen op eigen grond
- Twee balkons met heerlijk vrij uitzicht
- CV ketel uit 2022
- Energielabel C
- Voor en achter isolerende beglazing met nieuwe kozijnen
- Hoge plafonds met originele ornamenten
- Houten vloeren met dubbele isolatie
- Kleinschalige VvE met MJOP
- Servicekosten € 75,- per maand, ca. 12.000 Euro in kas. 
- Niet-zefbewoningsclausule in koopakte gezien het een voormalige huurwoning betreft
- Oplevering in overleg, kan snel! 



Deze woning is gemeten volgens de Meetinstructie gebaseerd op NEN2580. De Meetinstructie is bedoeld om een meer eenduidige manier van meten toe te passen voor het geven van een indicatie van de gebruiksoppervlakte. De Meetinstructie sluit verschillen in meetuitkomsten niet uit, door bijvoorbeeld interpretatieverschillen, afrondingen of beperkingen bij het uitvoeren van de meting. Hoewel wij de woning met veel zorg hebben laten opgemeten kan het zijn dat er verschillen zijn in de afmetingen. Noch verkoper noch de verkopend makelaar accepteert enige aansprakelijkheid voor deze verschillen. De maatvoeringen moeten worden gezien als zuiver indicatief. Indien de exacte maatvoering voor u van belang is, raden wij u aan de maten zelf te (laten) meten.  

Deze informatie is door ons met zorgvuldigheid samengesteld. Onzerzijds noch van verkopers zijde wordt echter geen enkele aansprakelijkheid aanvaard voor enige onvolledigheid, onjuistheid of anderszins, dan wel de gevolgen daarvan. Van toepassing zijn onze algemene voorwaarden.


ENGLISH:

Charming 1 bedroom apartment on freehold land of 67 m² with two balconies, original details, ample natural light, and stylish finishes. This property, with energy label C, is fully furnished, so you can move in right away!

Layout:
The communal staircase leads to the entrance of the apartment on the second floor.Hallway, en-suite living room with original details, such as the ornate ceilings and the large fireplace, combine beautifully with the wooden floors (with double insulation), underfloor heating, and French doors leading to your private balcony. The large windows and 3-meter ceiling height create a wonderful sense of space and light. The en-suite, which can also be used as a second bedroom, provides access to the spacious balcony at the quiet rear of the building, which enjoys the evening sun. Enjoy a wonderful unobstructed view here, as building height restrictions apply at the rear of the building. the bedroom features a handy pull-out bed. The kitchen has ceiling-high cabinets and a 6-burner gas stove. A modern bathroom features a walk-in shower.

Surroundings:
Located in the popular Linnaeuspark neighborhood, the most desirable part of the old Watergraafsmeer district, you'll live amidst wide, green avenues and beautiful early 20th-century architecture. The shops on Linnaeusstraat, Oostpoort shopping center, and charming Park Frankendael are just a few minutes' walk away. The neighborhood has a charming village character with a wide range of specialty shops, cozy coffee shops, amazing restaurants, and plenty of playgrounds, schools, and sports facilities. The square at Café 1900, with its fountain, cozy benches, and chestnut trees, is a popular meeting place for locals.

Sustainability: Ready for the future – district heating network under construction: the home is located in a neighborhood where work is underway on the Watergraafsmeer district heating network: a sustainable and local heating network initiated by residents themselves. The heat comes from the data center in the Science Park, eliminating the need for natural gas. Connecting is easy, and the first homes are expected to be able to use this district heating starting in 2028. A future-proof choice with stable, lower energy costs!

The property is easily accessible: the A10 highway system is just ten minutes away via S113, tram line 19 is just around the corner, and Amstel Station and Muiderpoort Station are within easy reach.

Details:
- Living area: 67 m²
- Freehold property
- Two balconies with wonderful unobstructed views
- Built in 1900
- Energy label C
- Insulating glazing, new windows
- High ceilings with original ornamentation
- Wooden floors throughout
- Small homeowners' association with long-term maintenance plan (MJOP) and around 12.000 Euro in savings
- Low monthly fees of only €75,--

Kenmerken