Description
ONLY STUDENTS
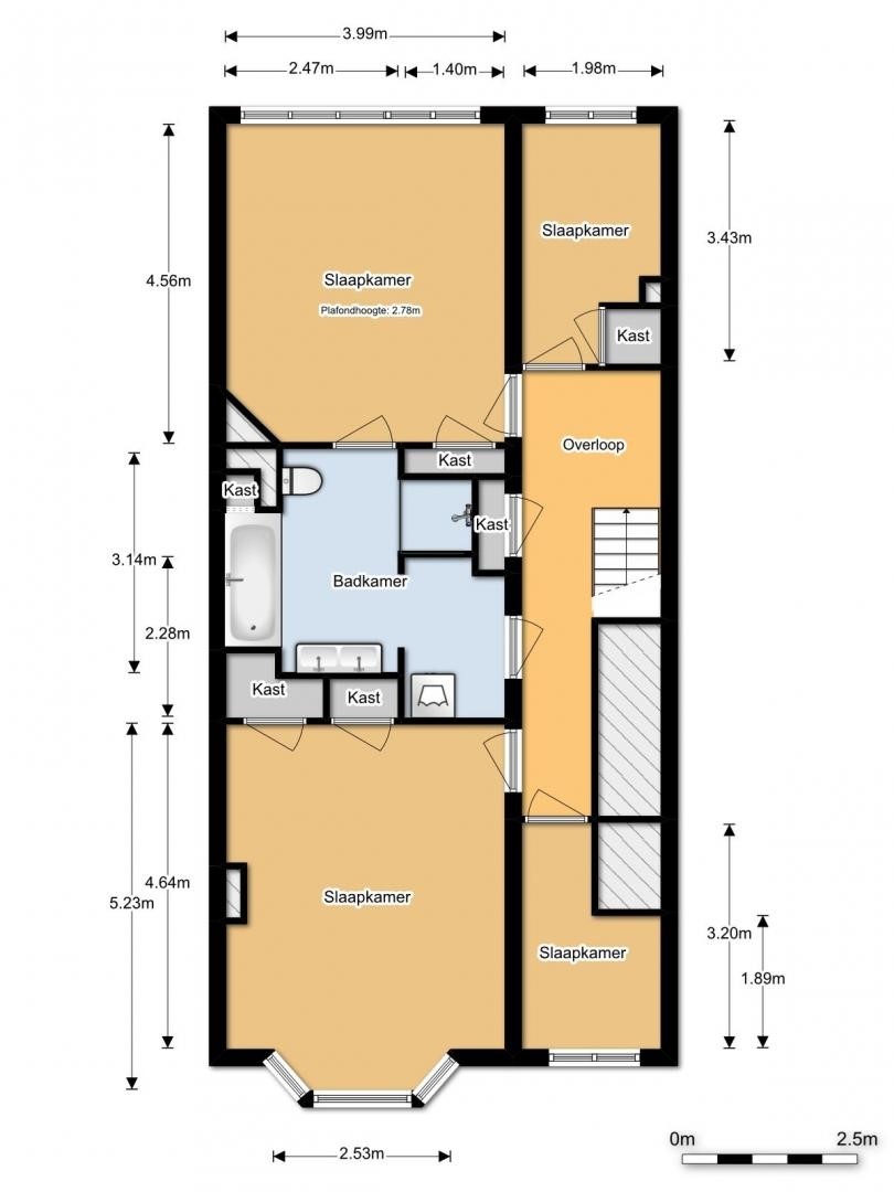
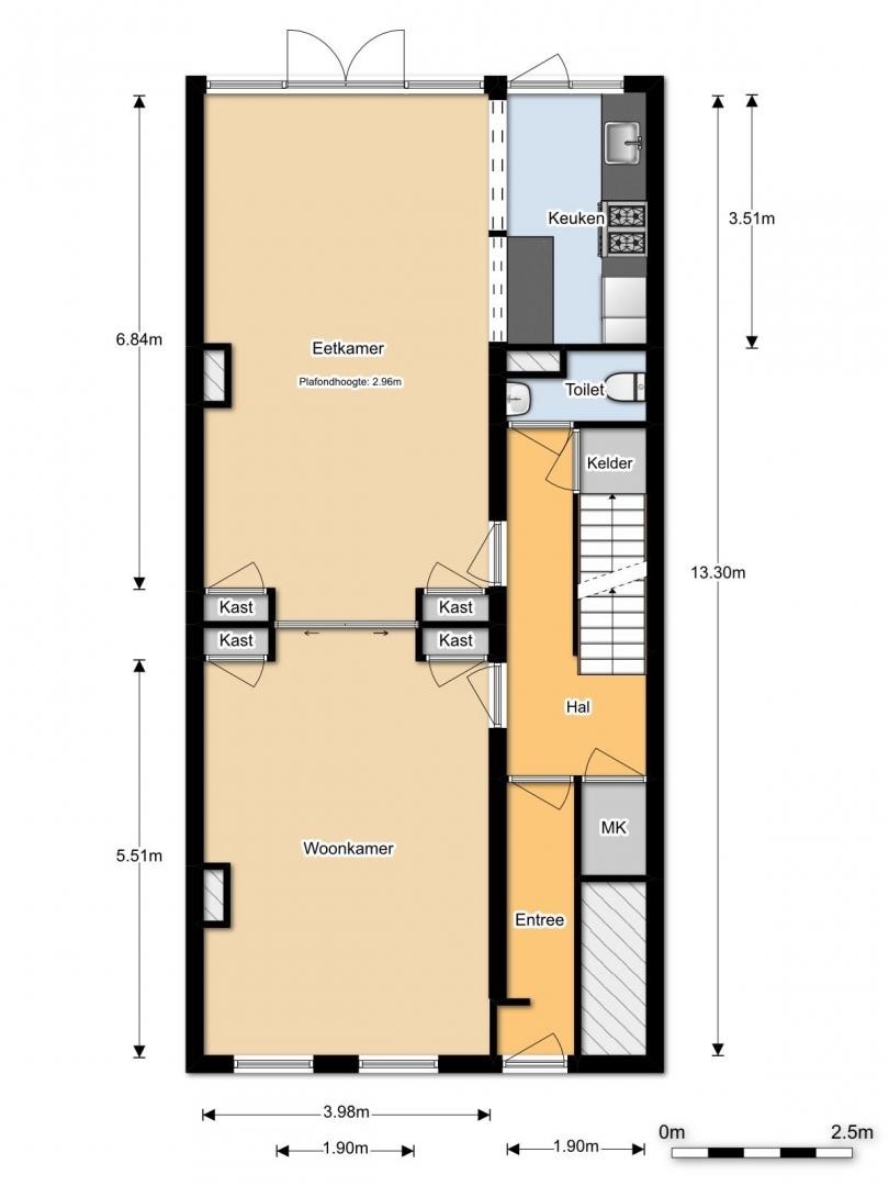
Luxury, unfurnished, four bedroom double ground floor house (approx. 160 m2) with garden, in quiet street in Middelland, Rotterdam.
LISTENING
Entrance on the first floor. Hallway. Spacious living room with adjacent dining room with double doors to the terrace and large garden (approx. 70 m2). Modern open kitchen with appliances including dishwasher, oven, stove, refrigerator and freezer. From the kitchen view on the dining room. Separate toilet in the hall. Via internal stairs to the second floor. Two spacious bedrooms with fitted wardrobes, one bedroom has direct access to the modern bathroom. Two smaller bedrooms / home office. Modern bathroom with bath, walk-in shower, double sink (furniture) and toilet.
SURROUNDINGS
Middelland has a central location making it pleasant city living. It is a special neighborhood that, from its inception to the present day, combines a stately atmosphere with creative residents such as musicians, writers and artists. Characteristic are the avenues and canals with stately architecture and therefore it has a rustic look. No other neighborhood has two faces as Middelland; the hustle and bustle of the city and a cozy environment at the same time. Due to the diversity you will find everything in the field of food, delicatessens and toko's, but also several restaurants and artisan stores. Furthermore, the house is conveniently located for roads (A13 and A20) and public transport (streetcars and Central Station). Finally, the city center is very easy and quick to reach. In short, an ideal combination!
PARTICULARS:
- Contract B: max. 10 months;
- Deposit equal to 2 months rent;
- Unfurnished;
- Excl. utilities
- Spacious garden!