Description
Beautiful two-bedroom apartment (approx. 81m2) available, no ground lease applicable, in the popular Helmersbuurt neighborhood.
Layout
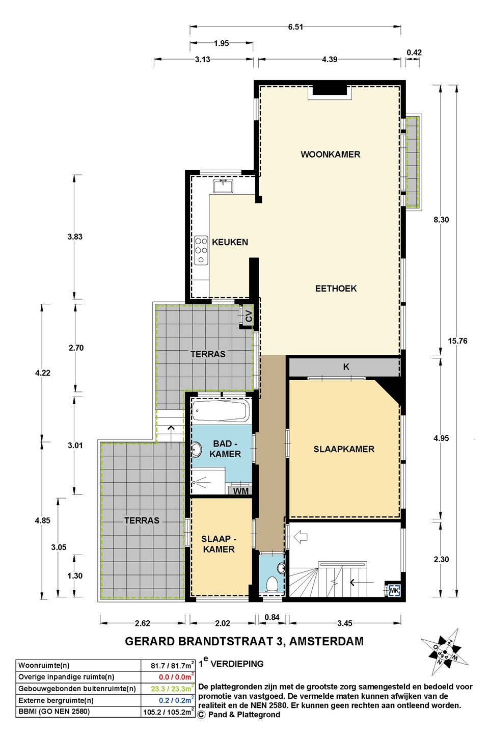
The entrance provides access to all rooms in the apartment. The spacious living room forms the heart of the home and offers enough space for a comfortable sitting area and a large dining table. Adjacent is the spacious kitchen, equipped with various built-in appliances and a practical layout.
The home has two well-sized bedrooms, which can be flexibly arranged as bedrooms, studies, or guest rooms. The bathroom is fully equipped with a bathtub, walk-in shower, and connections for a washer and dryer. There is also a separate toilet, which adds to the comfort of the home. The spacious outdoor area of approximately 23 m² is accessible from the living room, a nice place to sit outside.
Location
The apartment is located on the quiet Gerard Brandtstraat, in the middle of the popular Helmersbuurt neighborhood in Amsterdam-West. This neighborhood is known for its pleasant living environment with an excellent balance between tranquility and liveliness. Within walking distance is the Jan Pieter Heijenstraat with a diverse range of shops, specialty stores, and restaurants.
Public transportation is excellent, with several tram and bus connections in the immediate vicinity, making both the center of Amsterdam and other parts of the city quickly and easily accessible. Major roads are also within easy reach.
Details
Living area approx. 81 m²
Spacious outdoor area approx. 23 m²
Furniture possible to be taken over confirm list of movables
Energy label E
No ground lease
Active owners' association, monthly contribution €218.34
Located in the popular Helmersbuurt neighborhood in Amsterdam-West
Quiet street with excellent access to shops, restaurants, and public transportation