Beschrijving
***ENGLISH TEXT BELOW***
Ruim, gemeubileerd, twee-slaapkamer appartement (100m2), gelegen op het altijd zonnige IJburg.
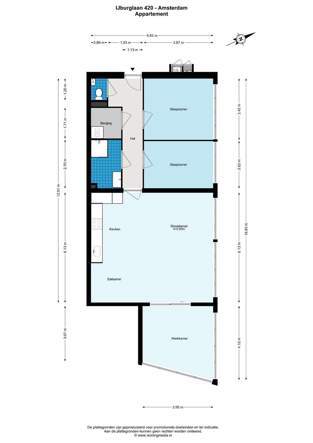
INDELING
Gebouw voorzien van een lift. Het appartement bevindt zich op de bovenste verdieping. Hall geeft toegang tot alle vertrekken. Twee gelijkwaardige slaapkamers, ruime badkamer met douche en wastafel. Separaat toilet. Ruime woonkamer met open keuken, voorzien van inbouwapparatuur o.a. vaatwasser, ijskast en oven. zonnige Loggia om heerlijk te genieten van het uitzicht over het IJ.
LOCATIE
Het appartement is gelegen in een leuke en gezellige woonomgeving in Haveneiland West. In de nabijheid van openbaar vervoer en uitvalswegen (binnen 5 minuten op Ring A10).
Op loopafstand bevinden zich diverse winkels, met onder andere ambachtelijke verswinkels, diverse lunch- en espressobars, een grote Albert Heijn en een biologische supermarkt, Aan de jachthaven wordt wekelijks een gezellige markt gehouden. Ook zijn er bibliotheken, sportscholen en een medisch centrum, een park en de stranden van IJburg. Het centrum van Amsterdam is binnen een kwartiertje te bereiken met zowel de auto als met de tram. De tramhalte, lijn 26 richting Centraal Station, bevindt zich op loopafstand
BIJZONDERHEDEN
- Beschikbaar per 01-01-2026 of eerder in overleg;
- Waarborgsom gelijk aan 2 maanden huur;
- Gemeubileerd;
- Excl. nutsvoorzieningen;
- Energielabel A;
- Geen huisdieren toegestaan;
ENGLISH
Spacious, furnished, two bedroom apartment (100m2) located at the always sunny IJburg.
LAY OUT
Building equipped with elevator. The apartment is located on the top floor. Central hall, two equally spacious bedrooms, modern bathroom with shower and sink. Separate toilet. Spacious living room with open kitchen, equipped with built-in appliances such as a dishwasher, fridge and oven. Sunny loggia to enjoy the views overlooking the water of 't IJ.
LOCATION
The apartment is located in a nice and cozy living environment in Haveneiland West. In the vicinity of public transport and roads (within 5 minutes on Ring A10).
There are various shops within walking distance, including artisanal fresh food shops, various lunch and espresso bars, a large Albert Heijn and an organic supermarket. A lively market is held weekly at the marina. There are also libraries, gyms and a medical center, a park and the beaches of IJburg. The center of Amsterdam can be reached within fifteen minutes by both car and tram. The tram stop, line 26 towards Central Station, is within walking distance.
PARTICULARITIES
- Available from January 1, 2026, or earlier by arrangement;
- Deposit equal to two months' rent;
- Furnished;
- Excluding utilities;
- Energy label A;
- No pets;