Beschrijving
Leeuwendalersweg 668 inclusief Parkeerplaats!
Unieke kans voor eigen bewoning of investering!!
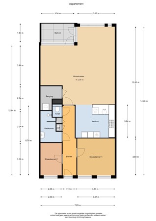
Ruim, modern en goed onderhouden driekamer appartement (mogelijkheid voor een extra kamer) dat u vele gemakken biedt om comfortabel te wonen. Uitzonderlijk ruime woonkamer voorzien van open keuken met schiereiland, veel lichtinval, goede isolatie met energielabel A, fijn balkon (6 m2) met ochtendzon en INCLUSIEF privé parkeerplaats in de inpandige garage!
INDELING
Tweede verdieping
Hoofdingang met intercom, nette centrale hal met lift naar de tweede verdieping waar de entree van de woning is.
Hal, garderobe, heerlijk ruime woonkamer met grote raampartijen, balkon en een prachtige open keuken met L-vorming schiereiland voorzien van inbouwapparatuur: 5-pits inductie kookplaat, afzuigkap, vaatwasmachine, grote koelkast en losse vriezer. Praktisch gepositioneerde wandcontactdozen en een lichtkleurig keramisch-stenen werkblad maken de keuken helemaal af.
De master bedroom biedt voldoende ruimte voor een groot tweepersoonsbed en kledingkasten.
Ook de tweede slaapkamer biedt ruimte voor zowel een tweepersoonsbed als een kledingkast, maar kan ook gebruikt worden als thuiswerkplek, babykamer of hobbyruimte.
Ruime badkamer, die slim is gepositioneerd nabij beide slaapkamers. Deze fijne badkamer is voorzien van inloopdouche met een handig nisje voor accessoires en een wand afscheiding tegen spatwater, wastafel met spiegel en badkamermeubel.
Separaat toilet + wasruimte met opbergplek.
PARKEERPLAATS
In de benedenbouw van het pand is de parkeergarage gelegen, die bereikbaar is vanuit de centrale gang. Hier geniet u van een inpandige privé parkeerplaats en rekken om uw fiets binnen te stallen.
LOCATIE
De woning is gelegen in een vrij nieuwe woonwijk welke is ingericht met sportlocaties en een speeltuin. Voor dagelijkse boodschappen zijn het nabijgelegen Mercatorplein en Bos en Lommerplein ideaal. Er zijn meerdere supermarkten, winkeltjes en cafés in de omgeving. Ook voor ontspanning en sportliefhebbers zijn het Erasmuspark, Rembrandtpark en Sloterpark snel te bereiken, evenals sportscholen, yogastudio’s en het Sloterparkbad.
BEREIKBAARHEID
Ringweg West A10 afslag S105 ligt op twee minuten afstand en met het openbaar vervoer is de woning goed te bereiken. Op loopafstand vind je metrohaltes Jan van Galenstraat en De Vlugtlaan en tram 7 en 13. Op tien minuten afstand liggen de stations Sloterdijk en Lelylaan.
- Bouwjaar 2009;
- Woonoppervlakte 98 m2;
- Balkon van 6 m2;
- Ruime woonkamer met open keuken met schiereiland;
- 2 slaapkamers; mogelijkheid tot extra kamer/kantoor;
- Energielabel A;
- Inclusief eigen parkeerplaats in garage;
- Per direct beschikbaar.
- Niet zelfbewoningsclausule in akte, gezien eigenaar het object louter heeft gebruikt voor verhuur.
Deze woning is gemeten volgens de Meetinstructie gebaseerd op NEN2580. De Meetinstructie is bedoeld om een meer eenduidige manier van meten toe te passen voor het geven van een indicatie van de gebruiksoppervlakte. De Meetinstructie sluit verschillen in meetuitkomsten niet uit, door bijvoorbeeld interpretatieverschillen, afrondingen of beperkingen bij het uitvoeren van de meting. Hoewel wij de woning met veel zorg hebben laten opgemeten kan het zijn dat er verschillen zijn in de afmetingen. Noch verkoper noch de verkopend makelaar accepteert enige aansprakelijkheid voor deze verschillen. De maatvoeringen moeten worden gezien als zuiver indicatief. Indien de exacte maatvoering voor u van belang is, raden wij u aan de maten zelf te (laten) meten.
Deze informatie is door ons met zorgvuldigheid samengesteld. Onzerzijds noch van verkopers zijde wordt echter geen enkele aansprakelijkheid aanvaard voor enige onvolledigheid, onjuistheid of anderszins, dan wel de gevolgen daarvan. Van toepassing zijn onze algemene voorwaarden.
ENGLISH:
PRICED TO SELL FAST!
Spacious, modern, and well-maintained two bedroom apartment offering comfortable living. Very spacious living room with an open-plan kitchen with island, abundant natural light, great insulation with energy rating A, a lovely balcony with morning sun, and your private parking space in the attached garage is included in the price!
LAYOUT
Second floor
Main entrance with intercom, central hallway with elevator to the second floor where the apartment is located.
Hallway, spacious living room with large windows, balcony, and a beautiful open-plan kitchen with an L-shaped island equipped with all built-in appliances: induction cooking, extractor hood, dishwasher, large fridge, and separate freezer. Conveniently positioned wall sockets and light-colored ceramic countertops complete the luxurious kitchen.
The master bedroom offers ample space for a double bed and wardrobes. The second bedroom also offers space for a double bed and a wardrobe or be used as home office.
Spacious bathroom, cleverly positioned near both bedrooms. This lovely modern bathroom features a walk-in shower with a handy niche for accessories.
Separate toilet + laundry room with storage space.
PARKING
The parking garage is located on the ground floor of the building, accessible from the central hallway. Here you'll enjoy a private indoor parking space and bicycle storage.
LOCATION
The building is situated in a relatively new residential area with sports facilities and a playground. Nearby Mercatorplein and Bos en Lommerplein are ideal for daily shopping. Several supermarkets, shops, and cozy cafés are located in the area. For relaxation and sports you'll find Erasmus Park, Rembrandt Park, and Sloterpark.
ACCESSIBILITY
The highway system is just two minutes away, and the property is easily accessible by public transport. Jan van Galenstraat and De Vlugtlaan metro stations, as well as tram lines 7 and 13, are within walking distance. Sloterdijk and Lelylaan station are just ten minutes away.
- Built in 2009;
- Living area: 98 m²;
- 6 m² balcony;
- Spacious living room with open-plan kitchen;
- 2 bedrooms;
- Energy rating A;
- Includes a private parking space in the garage;
- Available per today.