Beschrijving
**English text below**
Charmant en modern appartement met patio – Pieter Baststraat 18H, Amsterdam
Welkom bij dit sfeervolle en goed onderhouden appartement in de geliefde Pieter Baststraat! Een woning met een doordachte indeling, moderne voorzieningen en een patio, gelegen op een toplocatie in Amsterdam.
Indeling:
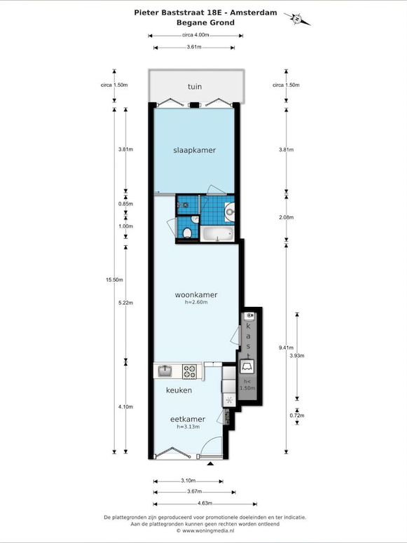
Bij binnenkomst stap je direct de open keuken met eetgedeelte binnen. De voorpui kan in zijn geheel open, waardoor je in de zomermaanden heerlijk het buitengevoel naar binnen haalt. De keuken is uitgerust met alle benodigde inbouwapparatuur, waaronder een 4-pits gasfornuis, afzuigkap, vaatwasmachine en koel-/vriescombinatie.
Via een klein trappetje bereik je de ruime woonkamer. Vanuit hier heb je toegang tot de praktische inpandige berging met garderobe en een aansluiting voor de wasmachine. Grenzend aan de woonkamer vind je een halletje met het gastentoilet.
Aan de achterzijde ligt de slaapkamer met badkamer en suite. De moderne badkamer beschikt over een inloopdouche, ligbad en wastafel. Vanuit de slaapkamer heb je toegang tot de patio, een fijne buitenruimte om in alle rust te genieten.
Locatie:
De Pieter Baststraat is een rustige straat in de populaire Pijp, op loopafstand van talloze restaurants, cafés en winkels. Voor de dagelijkse boodschappen zijn er diverse supermarkten en speciaalzaken in de directe omgeving. De Albert Cuypmarkt en het Sarphatipark liggen op steenworp afstand.
Qua bereikbaarheid zit je hier uitstekend: de Noord/Zuidlijn (metrostation De Pijp) en meerdere tram- en buslijnen bevinden zich op loopafstand. Met de fiets ben je binnen enkele minuten in het centrum van Amsterdam, en met de auto heb je via de A10 snelle toegang tot de ring.
Details:
- Woonoppervlakte circa 59,5 m² (conform NEN2580);
- Oplevering in overleg
- Gelegen op eigen grond (geen erfpacht)
- Actieve VvE, maandelijkse lasten: €75
- Fundering vernieuwd in 2007
- Achtergevel volledig geschilderd in 2023
- Energielabel A
Deze informatie is door ons met de nodige zorgvuldigheid samengesteld. Onzerzijds wordt echter geen enkele aansprakelijkheid aanvaard voor enige onvolledigheid, onjuistheid of anderszins, dan wel de gevolgen daarvan. Koper heeft zijn eigen onderzoeksplicht naar alles wat voor hem of haar van belang is of kan zijn. Met betrekking tot deze woning zijn wij uitsluitend makelaar adviseur van verkoper. Wij adviseren u een deskundige (NVM-)makelaar in te schakelen die u begeleidt bij het aankoopproces. Indien u specifieke wensen heeft omtrent de woning, adviseren wij u deze tijdig kenbaar te maken aan uw aankopend makelaar en hiernaar zelfstandig onderzoek te (laten) doen. Indien u geen deskundige vertegenwoordiger inschakelt, acht u zich volgens de wet deskundig genoeg om alles wat van belang is of kan zijn voor u te kunnen overzien.
**English**
Charming and Modern Apartment with Patio – Pieter Baststraat 18H, Amsterdam
Welcome to this stylish and well-maintained apartment on the sought-after Pieter Baststraat! A home with a smart layout, modern features, and a private patio, ideally located in the heart of Amsterdam.
Layout:
Upon entering, you step directly into the open kitchen with dining area. The front façade can be fully opened, allowing you to bring the outdoors in during the summer months. The kitchen is fitted with all necessary built-in appliances, including a four-burner gas hob, extractor fan, dishwasher, and fridge/freezer combination.
A small staircase leads you to the spacious living room. From here, you have access to a practical internal storage space with wardrobe and washing machine connection. Adjacent to the living room is a small hallway with a guest toilet.
At the rear of the apartment, you will find the bedroom with en-suite bathroom. The modern bathroom is equipped with a walk-in shower, bathtub, and washbasin. From the bedroom, you have direct access to the patio—a delightful outdoor space to enjoy in peace and privacy.
Location:
Pieter Baststraat is a quiet street in the popular De Pijp neighborhood, within walking distance of countless restaurants, cafés, and shops. For daily groceries, there are several supermarkets and specialty stores nearby. The famous Albert Cuyp Market and the Sarphatipark are just a stone’s throw away.
The apartment is also very well connected: the North/South metro line (De Pijp station) and multiple tram and bus lines are within walking distance. By bike, you can reach Amsterdam’s city center in just a few minutes, and by car you have quick access to the A10 ring road.
Details:
- Living area approx. 59,5 m² (in accordance with NEN2580)
- Transfer by mutual agreement
- Located on freehold land (no ground lease)
- Active homeowners’ association (VvE), monthly contribution: €75
- Foundation renewed in 2007
- Rear façade fully painted in 2023
- Energy label A
This information has been compiled with the greatest possible care. However, we accept no liability for any inaccuracies or deficiencies in that information or for any consequences arising therefrom. It is the duty of the purchaser to investigate all matters of importance to him or her. With regard to this property, we act solely in an advisory capacity as the estate agents of the vendor. We advise you to engage the services of an NVM estate agent to assist you with the purchasing process. If you have any specific wishes regarding the property, you are advised to notify your purchasing estate agent as soon as possible and to conduct any investigations yourself, or to arrange to have them conducted. If you do not engage the services of a qualified representative, you are deemed by law to have a sufficient understanding and awareness of everything that is or could be of importance to you.