Nieuw in verkoop: Pieter Baststraat 18E, 1071 TX Amsterdam
Nieuw in verkoop: Pieter Baststraat 18E, 1071 TX Amsterdam
Nieuw in verkoop: Pieter Baststraat 18E, 1071 TX Amsterdam
Nieuw in verkoop A

Pieter Baststraat 18E, 1071 TX Amsterdam

€ 525.000,- k.k.

Beschrijving Pieter Baststraat 18E

**English text below**

Charmant en modern appartement met patio – Pieter Baststraat 18H, Amsterdam

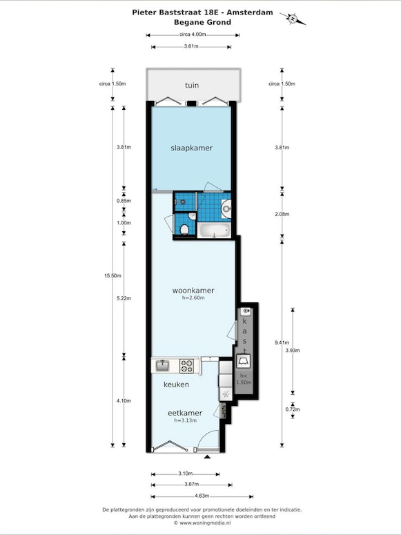
Welkom bij dit sfeervolle en goed onderhouden appartement in de geliefde Pieter Baststraat! Een woning met een doordachte indeling, moderne voorzieningen en een patio, gelegen op een toplocati...

Kenmerken

Type object Appartement, benedenwoning
Bouwperiode 1905
Status Nieuw in verkoop
Aangeboden sinds Vrijdag 17 oktober 2025

Pieter Baststraat 18E bekijken?

Wij plannen graag een bezichtiging met je in. Tijdens de bezichtiging vertelt een makelaar alles wat je wilt weten.